Sandwich DPW + Fire Substation
See above for a presentation the Sandwich DPW + Fire Substation team gave to the Town’s Finance Committee! The slideshow gives much information on the project!
In hopes of spreading information and awareness on why the Town of Sandwich needs a new Public Works Facility and Fire Station, we had the chance to walk through each department with their respective Director and Chief. Below, each walkthrough details the obstacles faced by Public Works Staff and Fire Staff every day. New facilities would greatly improve working conditions and allow the Town employees to better serve Sandwich.
Director of Public Works, Paul Tilton, walks us through the Sandwich DPW above.
Fire Chief, JJ Burke, walks us through Sandwich Fire Station #1 above.
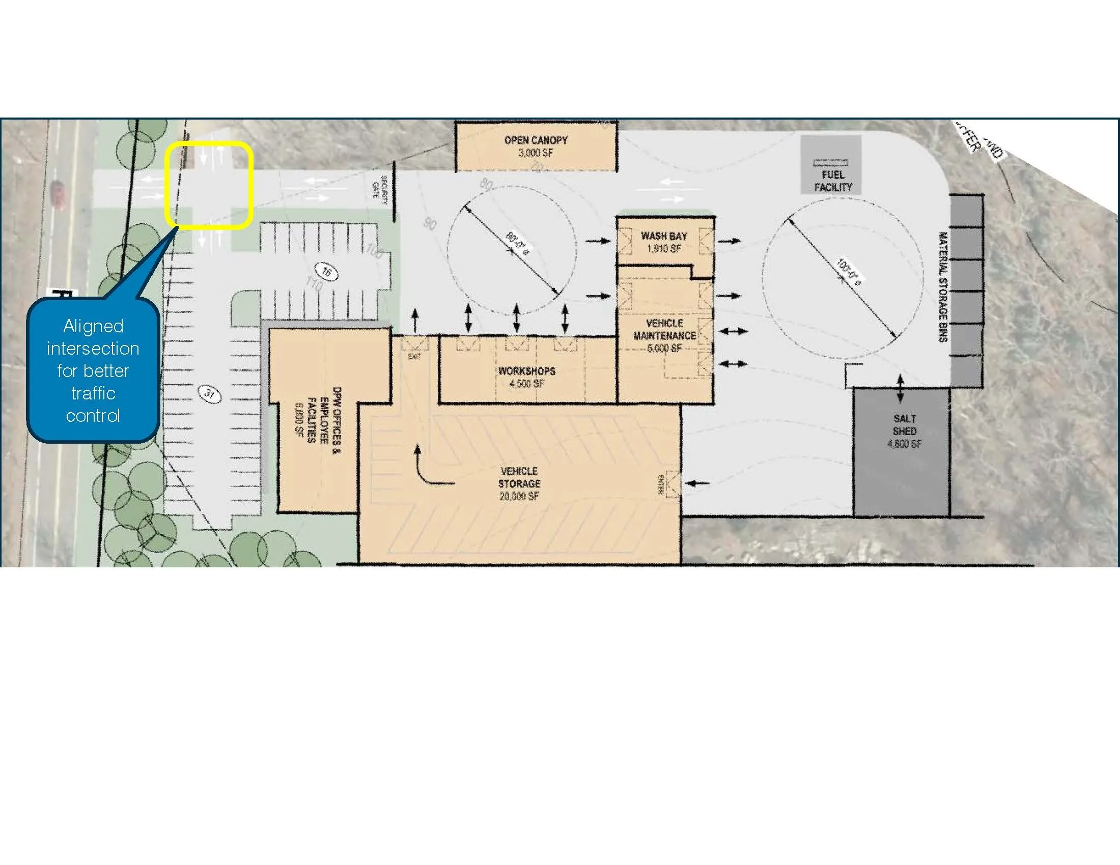
The site rendering above shows Weston & Sampson’s latest and most-updated design of the new Public Works Facility and Fire Substation. The plan is for this complex to be located at 500 Route 130 in Sandwich, MA. This design has been a work-in-progress for the past year, where various sites in Town were assessed for structural suitability, traffic flow, site grades, and cost saving measures. Sandwich’s designated DPW + Fire Building Committee, along with Pomroy Associates and Weston & Sampson, recommended this site after months of investigation.
The below slideshow was presented to Sandwich’s Finance Committee in February 2025. The slideshow contains evidence and reasoning as to why the Town advocates for a new Public Works Facility and Fire Substation.
The document below is typically presented as a trifold brochure! The brochure encapsulates the history and purpose of Sandwich’s Public Works Facility and is being used to inform the Town’s citizens on why a new facility is needed, and how to Town will benefit if the Department is relocated to a new, updated building.
The Town of Sandwich has commenced schematic design for a Public Works Facility and Fire Substation, with plans to create a shared-use site out of the current Department of Public Works site, located at 500 Route 130.
Sandwich approved funding for the study at our November 2023 Special Town Meeting. The Town is working with Pomroy Associates as its Project Manager, and with an advisory committee. The committee includes Select Board Chair- Charles Holden, Select Board Member - Patrick Ellis, Finance Committee Member - Matthew Anderson, Director of Public Works - Paul Tilton, Fire Chief, - John Burke, Town Manager - George Dunham, and Assistant Town Manager - Heather Harper.
The committee recently selected Weston & Sampson as the project’s designer and engineer. The approved phase of this project will review program needs for both the Fire Department and the Department of Public Works, and will include a detailed site assessment, a fire response time analysis, and design alternatives.
Public outreach and community engagement opportunities will be planned later this year. As the project progresses, Pomroy Associates will be updating this page dedicated to informing the Sandwich community of ongoing details.
